top of page
heidi montenegro.
Architecte, oaq..
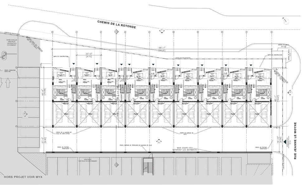
MAISONS DE VILLE
FORME STUDIO architecture
SITE: Ile de sœur
PROGRAMME: 9 maisons de ville, 200 m2, 4 chambres
PHASE: Esquisse au permis de construction
ANNÉE: 2017-2019
RÔLE: Chargée de projet conception adjointe
<<<<< VOIR PLANS CCU
Responsable de la conception de l'esquisse du projet préliminaire et développement du projet définitif, plans coupes élévations, aménagements intérieure des unités, étude de la réglementation municipal, du code, révision préliminaire technique, réalisation en revit et skechupt ,production des brochures et plans de présentation pour le client , et livraison du dossier CCU et des plans pour Permis construction, coordination avec les différents intervenants.
bottom of page










