top of page
heidi montenegro.
Architecte, oaq..
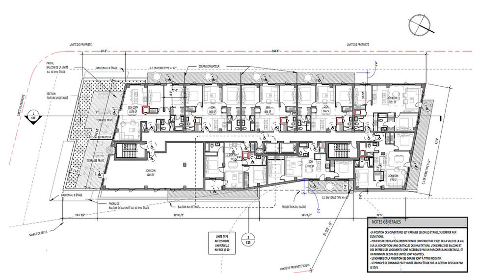
RÉSIDENTIEL 10 ÉTAGES
avec forme studio architecture
SITE: LAVAL
PROGRAMME: 110 unités
ANNÉE: 2017-2020
RÔLE: Chargée de projet conception ad. ( suivi de projet définitif)
<<<<< VOIR PLANS
Responsable de la conception de l'esquisse du projet préliminaire et développement du projet définitif, plans coupes élévations, aménagements intérieure des unités, étude de la réglementation municipal, du code, révision préliminaire technique, réalisation en revit et skechupt ,production des brochures et plans de présentation pour le client
gestion et livraison de dossier CCU et PIIA, coordination avec les différents intervenants.
bottom of page














